Справка документа
Источник публикации
Официальный сайт Правительства Ивановской области http://www.ivanovoobl.ru, 18.06.2018,
Официальный интернет-портал правовой информации http://www.pravo.gov.ru, 19.06.2018
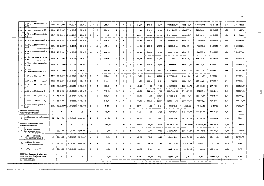
Постановление Правительства Ивановской области от 18.06.2018 N 168-п "О внесении изменений в постановление Правительства Ивановской области от 15.04.2013 N 134-п "Об утверждении региональной адресной программы "Переселение граждан из аварийного жилищного фонда на территории Ивановской области на 2013 - 2017 годы" (вместе с "Перечнем аварийных многоквартирных домов, из которых граждане подлежат переселению в многоквартирные дома, в том числе отнесенные к домам малоэтажной застройки", "Реестром аварийных многоквартирных домов по способам переселения, из которых граждане подлежат переселению в многоквартирные дома, в том числе отнесенные к домам малоэтажной застройки", "Порядком предоставления и расходования субсидии бюджету Савинского городского поселения на достройку жилого дома в поселке Савино в 2018 году")
Скачать:
PDF (3 Мб)
Страница 21 из 46