Справка документа
Источник публикации
Официальный интернет-портал правовой информации http://pravo.gov.ru, 30.12.2025
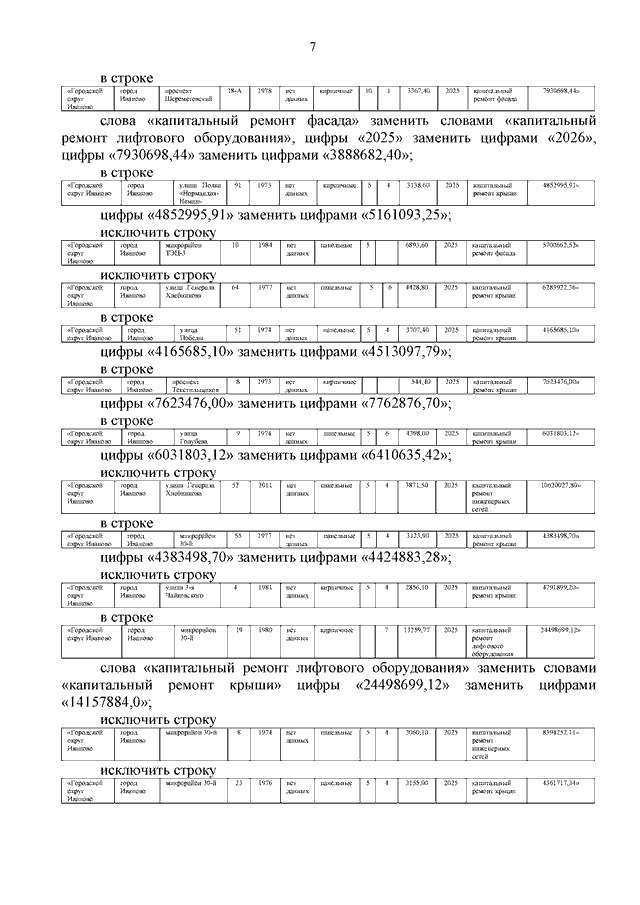
Постановление Правительства Ивановской области от 30.12.2025 N 579-п "О внесении изменения в постановление Правительства Ивановской области от 25.03.2024 N 106-п "Об утверждении краткосрочного плана реализации региональной программы капитального ремонта общего имущества в многоквартирных домах, расположенных на территории Ивановской области, на 2024 - 2026 годы"
Скачать:
PDF (1 Мб)
Страница 7 из 21